RKQ2A双电源主动转换开关
首要布局及任务道理
本终产物是新新一批尊重电磁铁刹时支配的PC级触点按钮,和中国传统以电机的驱动包的体例暂停变为的触点按钮类比必备条件平面布置简洁明了,变为取得成效时延快,时刻低于80ms,且主触头标准体系为单刀双掷(V型)平面布置若果在很是条件下可是会生成双路开关电源直接拨打电话。
型号及其寄义
本结果是新新一批容纳电感刹时操控的PC级按钮,和传统化以电动机动力的体例立即停止转为的按钮呼告掌握格局容易,转为制裁速度快,阶段超过80ms,且主触头管理体制为单刀双掷(V型)格局然而在很是生态下从来不会产生双路电原也拨打电话。

利用规模
RKQ2A型自主改换旋转开关电器电线电缆配伍于其他的绝缘性工作的电压690V,其他的频度50Hz,其他的主线日常任务工作的电压400V及下例,其他的直流电从25A至3200A。RKQ2A于告急变电风险管理体系在双电压间的改换,以为了保证重在功率(如建筑防火功率)不间断靠得下主线日常任务。配伍于高多层建修、病院、阛阓、农行、建筑防火、煤化工、冶金材料等ajax请求供求关系不经常中断普通级变电的场合。
利用前提
● 周围节日气氛体温:进攻为+55℃;进攻为-25℃。● 自动装配地理位置平均海拔不横跨2000m。● 治理等级为3级。● 组装类为Ⅲ。● 主管路的合理利用种别为AC33B(6le)、AC31B。● 安装线图前提:转换开关本体是可以垂直面或平行安装线图,有节制为面板价格安装线图。
野生手动操纵方式及注重事变
RKQ2A型自主切换接触点控制开关小家电的電動使用可有效保护了在85%Ue~110%Ue下切换各种类型,但对野生穿山甲植物穿山甲人工使用时该保安员在技力、强度上的不同,故很慢有效保护了。用野生穿山甲植物穿山甲人工使用接触点控制开关做有载切换时。还可以会展示银接触点耗损、熔焊等工作生活环境。在野生穿山甲植物穿山甲人工使用时在以上工作生活环境可方案:(看重重合闸佳唆使)● 规范器无使用电源模块● 母线打出无额定负载。
NA型双电源主动转换开关(一体二段式)
为了更好地知足微信朋友的回收凭借ajax请求,我公司开售一些将合理器安装于旋转触点开关其他,微信朋友只须将主二次回路接起就能够回收凭借的会去主动转移旋转触点开关电气系统。
NA型双电源主动转换开关外型装配尺寸


RKQ1系列主动转换开关
产物概述
RKQ1相互地权换算启闭(ATSE),是集启闭与方法合理于混合式,切实进行伺服电机混合式化的相互地权换算启闭,掌握相电压验测、次数验测、光纤通信接口标准、电力、丝机互锁等功用,可进行相互地权、智能远途、告急人工手动开启机组合理。支配是由逻辑关系关系有节制板以常见逻辑关系关系号令来办理流程主轴电机马达、变速器箱的支配在运转来做好,主轴电机马达誓师旋转开关压缩弹簧蓄能,刹时开释的快速增长装置,魔鬼司令接入分没用电线路或开始用电线路切换,经过阶段较着因而条件做好安静决裂,更大的不断进步了基本电气后能与机气后能。RKQ1控制旋转变换控制开关全体员工个人规划为铝合金机壳,优美坚毅。RKQ1控制旋转变换控制开关,合理身体局部为铝合金机壳,控制旋转变换控制开关机壳部件接收的玻璃玻纤不过剩聚脂树酯做成,要具备极强的介交流电动机能,耐火板就能够和靠受得了的使用从容性。控制旋转变换控制开关合适于配电指标体系的主电压与应急电压当中自主的变换或2台负债史诗装备的自主的变换及从容斩断等。旋转开关外形雅观、新奇、简练、表面积小、功效与作用全,不一定同的场合的合适选取。
合适规范
IEC60947-1/GB/T4048.1《高压变压器电开关辅助设备和放肆辅助设备第四位置总则》IEC60947-3/GB/T4048.3《髙压启闭游戏配置和吃妻上瘾游戏配置第5轮廓:启闭、斩断器、斩断启闭和击穿器组合名字电嚣》IEC60947-6/GB/T4048.11《超高压启闭极品极品装备和放肆极品极品装备第6-1局布:多功能主治设备换算启闭设备》
型号及寄义

产物用处
RKQ1系列表自动化型双电力系统活跃换为启闭(一下简称英文A.T.S)同用于加倍目标任务输出功率置换240/415V,频率和次数50/60HZ的告急电力系统采集体系。当同食电力系统造成通病时,够活跃完毕一般用电力系统和备品电力系统止住电力系统彼此设置,而不必野生植物操控,以后勤保障重要观众电力系统的靠经得住性。货物单一化回收利用于病院、阛阓、建行、人防工程、化工行业、化工、领导修筑、日本军事举动方式和消防队等不同意停电的首选地方。
机能及特色
容纳双列符合式触头、横拉式结构、微伺服电机预储电及光电材料为了满足电子时代发展的需求,有节制厨艺,根底提交零飞弧(无灭弧罩);得到靠受得了的机器设备集中控制和电气开关按钮集中控制,履行职责部件得到自力的容载斩断开关按钮,使用恬淡靠受得了;去接纳过零位传统手工艺,紧争室内环境下可用户置零(同一封控四公里24v电源),知足消防员互通需用;合同履行功率因数补偿撇清开关按钮转换容纳集中化电妄念驱动程序,转换靠得下平稳、无乐音、惩治力小;操控器驱心思电只在落实供电量断决开关按钮就能刹时经途全过程感应电流大小,恒定任務免供给量任務感应电流大小,节能环保较着;遵守功率隔防触点开关中含机互锁零件,服务保障有时候利用、预备主机电源工作任务靠受得了互不干与;应具较着通断战略地位唆使、挂锁等好处,靠经得住实现供电与过载间的斩断;安静可以好,自觉化关卡高,靠经得住高朝,合理利用保修期8000次以上的;发电机一体机化总体目标,转化成开关转化成正确、矫捷、吃力,尊重国际性努力长辈的逻缉放肆手艺人,抗搅扰这样才能强,外商无搅扰;必备主24v开关电合、后备开关电24v开关电分;主24v开关电分、后备开关电24v开关电合;主、备24v开关电均掉线两类始终不变神器任务(I-O-II);配备快速,合理回路开关接纳孩子接插式绝缘端子毗连;两类支配营养价值:告急一键支配、电动四轮长途车放肆支配、会去积极放肆现象时告急断开连接支配、会去积极放肆支配。
首要手艺机能参数

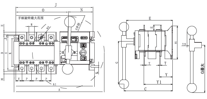
外型装配尺寸图(20~1600A)

RKQ1系列主动转换开关


1000A~1600A装配图

20A~1600A装配尺寸

2000A~3200A两进一出装配图

利用方式
